This calculator provides a guide to the amount of residential stamp duty you may pay and does not guarantee this will be the actual cost. This calculation is based on the Stamp Duty Land Tax Rates for residential properties purchased from 23rd September 2022 and second homes from 31st October 2024. For more information on Stamp Duty Land Tax, click here.
3 bedroom Flat for sale, Belham Walk, London, SE5
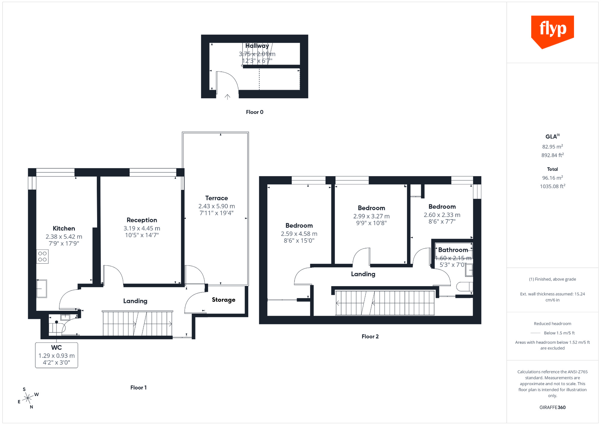
Features and Description
- Three Bedroom Flat
- 892 SQ FT
- Requires Modernisation Throughout
- Private Balcony
- Popular Location
- No Chain
Located within a quiet residential development on Belham Walk, this three bedroom split level flat presents an excellent renovation opportunity for buyers looking to add value to a spacious home. The flat requires modernisation throughout, making it ideal for investors, developers, or owner-occupiers seeking a project in a highly desirable SE5 location.
Arranged over two levels, the property comprises a generous reception room, a separate kitchen, three well proportioned bedrooms, a family bathroom and separate W.C.
Ideally positioned close to Camberwell Green and Burgess Park, the property also benefits from excellent transport connections, with Denmark Hill Station nearby, offering easy access into Central London and beyond. A wide range of local shops, cafes, and amenities are within easy reach.
Reception Room
10'5" x 14'7" (3.18m x 4.45m)
Kitchen
7'9" x 17'9" (2.36m x 5.40m)
WC
4'2" x 2'12" (1.27m x 0.91m)
Terrace
7'11" x 19'4" (2.41m x 5.90m)
Bedroom 1
8'6" x 14'12" (2.60m x 4.57m)
Bedroom 2
9'9" x 10'8" (2.97m x 3.25m)
Bedroom 3
8'6" x 7'7" (2.60m x 2.30m)
Bathroom
5'3" x 7'7" (1.60m x 2.30m)
Tenure
Leasehold 125 years from 27/06/2005
Service Charges
£5,380 per annum (Includes heating and hot water)
Ground Rent
£10 per annum
EPC Rating
Band D
IMPORTANT NOTE TO POTENTIAL PURCHASERS:
We endeavour to make our particulars accurate and reliable, however, they do not constitute or form part of an offer or any contract and none is to be relied upon as statements of representation or fact. The services, systems and appliances listed in this specification have not been tested by us and no guarantee as to their operating ability or efficiency is given. All photographs and measurements have been taken as a guide only and are not precise. Floor plans where included are not to scale and accuracy is not guaranteed. If you require clarification or further information on any points, please contact us, especially if you are travelling some distance to view. Fixtures and fittings other than those mentioned are to be agreed with the seller.
Additional Information
-
Property refKEI260022
-
EPCD
-
TenureLeasehold
-
Lease length104 years
-
Council TaxC
-
Local authoritySouthwark Council
-
Ground Rent£10
-
Ground Rent ReviewContact the branch
-
Service Charge£5,380
Similar properties for sale by Reeds Rains Kennington
The pin shows the exact address of the property
Energy Efficiency Rating
Very energy efficient - lower running costs
Not energy efficient - higher running costs
Current
68Potential
73CO2 Rating
Very energy efficient - lower running costs
Not energy efficient - higher running costs
