This calculator provides a guide to the amount of residential stamp duty you may pay and does not guarantee this will be the actual cost. This calculation is based on the Stamp Duty Land Tax Rates for residential properties purchased from 23rd September 2022 and second homes from 31st October 2024. For more information on Stamp Duty Land Tax, click here.
Land/Plot for sale, Heptonstall Road, Hebden Bridge, West Yorkshire, HX7
Features and Description
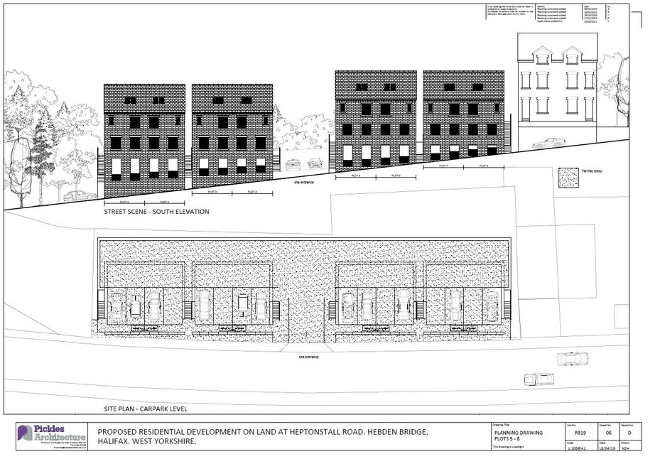
- DEVELOPMENT PLOT
- PLANNING FOR 8 HOMES
An unbelievable opportunity to purchase a superb development plot with planning for 8 semi detached four bedroom homes. The planning includes parking areas and ample living space.
For full planning information visit the planning portal with the reference 19/00758/FUL
Call Reeds Rains for more information about the land and to organise a site visit.
Agents Notes
The land is accessed directly from Heptonstall Road with the services already being right in place to pull from the roadside. Freehold LandPlanning in place - See Calderdale council site reference: 19/00758/FULContact the office for plans and further info.
IMPORTANT NOTE TO POTENTIAL PURCHASERS:
We endeavour to make our particulars accurate and reliable, however, they do not constitute or form part of an offer or any contract and none is to be relied upon as statements of representation or fact. The services, systems and appliances listed in this specification have not been tested by us and no guarantee as to their operating ability or efficiency is given. All photographs and measurements have been taken as a guide only and are not precise. Floor plans where included are not to scale and accuracy is not guaranteed. If you require clarification or further information on any points, please contact us, especially if you are travelling some distance to view. Fixtures and fittings other than those mentioned are to be agreed with the seller.
Heptonstall Road, Hebden Bridge, West Yorkshire, HX7
Additional Information
-
Property refHBR260026
-
TenureFreehold
Similar properties for sale by Reeds Rains Hebden Bridge
The pin shows the exact address of the property
Energy Efficiency Rating
Very energy efficient - lower running costs
Not energy efficient - higher running costs
Current
N/APotential
N/ACO2 Rating
Very energy efficient - lower running costs
Not energy efficient - higher running costs
