This calculator provides a guide to the amount of residential stamp duty you may pay and does not guarantee this will be the actual cost. This calculation is based on the Stamp Duty Land Tax Rates for residential properties purchased from 23rd September 2022 and second homes from 31st October 2024. For more information on Stamp Duty Land Tax, click here.
2 bedroom Mid Terrace House for sale, Cockster Road, Stoke-on-Trent, Staffordshire, ST3
Features and Description
- Spacious separate reception room
- Charming fireplace feature
- Open-plan kitchen with dining area
- Ample natural light throughout
- Two generous double bedrooms
- Contemporary three-piece bathroom suite
- Private garden for outdoor living
- Close to reputable local schools
- Excellent public transport links
- Sought-after convenient location
Presenting this well-presented terraced house, offered for sale in good condition, ideally situated with convenient access to public transport links, nearby schools, and a range of local amenities. Perfectly suited to first-time buyers, investors, or families, this property combines comfort with practicality in a sought-after location.
The interior features a spacious, separate reception room which benefits from a charming fireplace, providing a welcoming space for relaxation or entertaining guests. The well-appointed, open-plan kitchen is enhanced by ample natural light, and offers dedicated dining space—ideal for family meals and gatherings. Fitted with a range of base and eye-level units, the kitchen is both stylish and functional, making it well-suited for daily living.
Accommodation comprises two generous double bedrooms, each offering ample space for furnishings and a restful ambiance. The contemporary bathroom is fitted with a three-piece suite, providing practicality and comfort.
Externally, the property boasts a private garden, offering an enjoyable outdoor space for recreation, alfresco dining, or gardening enthusiasts.
Situated in a vibrant area with excellent connectivity, this attractive house is within easy reach of local amenities and reputable schools, making it a superb option for a range of buyers. Arrange your viewing today to fully appreciate all that this delightful home has to offer.
This house is for sale via the modern method of auction and is in need of modernisation throughout, making it an excellent project for those willing to invest some time and energy. With its charming features and potential, it promises to be a worthwhile investment.
This property is for sale by the Modern Method of Auction, meaning the buyer and seller are to Complete within 56 days (the "Reservation Period"). Interested parties personal data will be shared with the Auctioneer (iamsold).
If considering buying with a mortgage, inspect and consider the property carefully with your lender before bidding.
A Buyer Information Pack is provided. The buyer will pay £495.00 including VAT for this pack, payable on completion of the purchase, which you must view before bidding.
The buyer signs a Reservation Agreement and makes payment of a non-refundable Reservation Fee of 4.50% of the purchase price including VAT, subject to a minimum of £7,300.00 including VAT. This is paid to reserve the property to the buyer during the Reservation Period and is paid in addition to the purchase price. This is considered within calculations for Stamp Duty Land Tax.
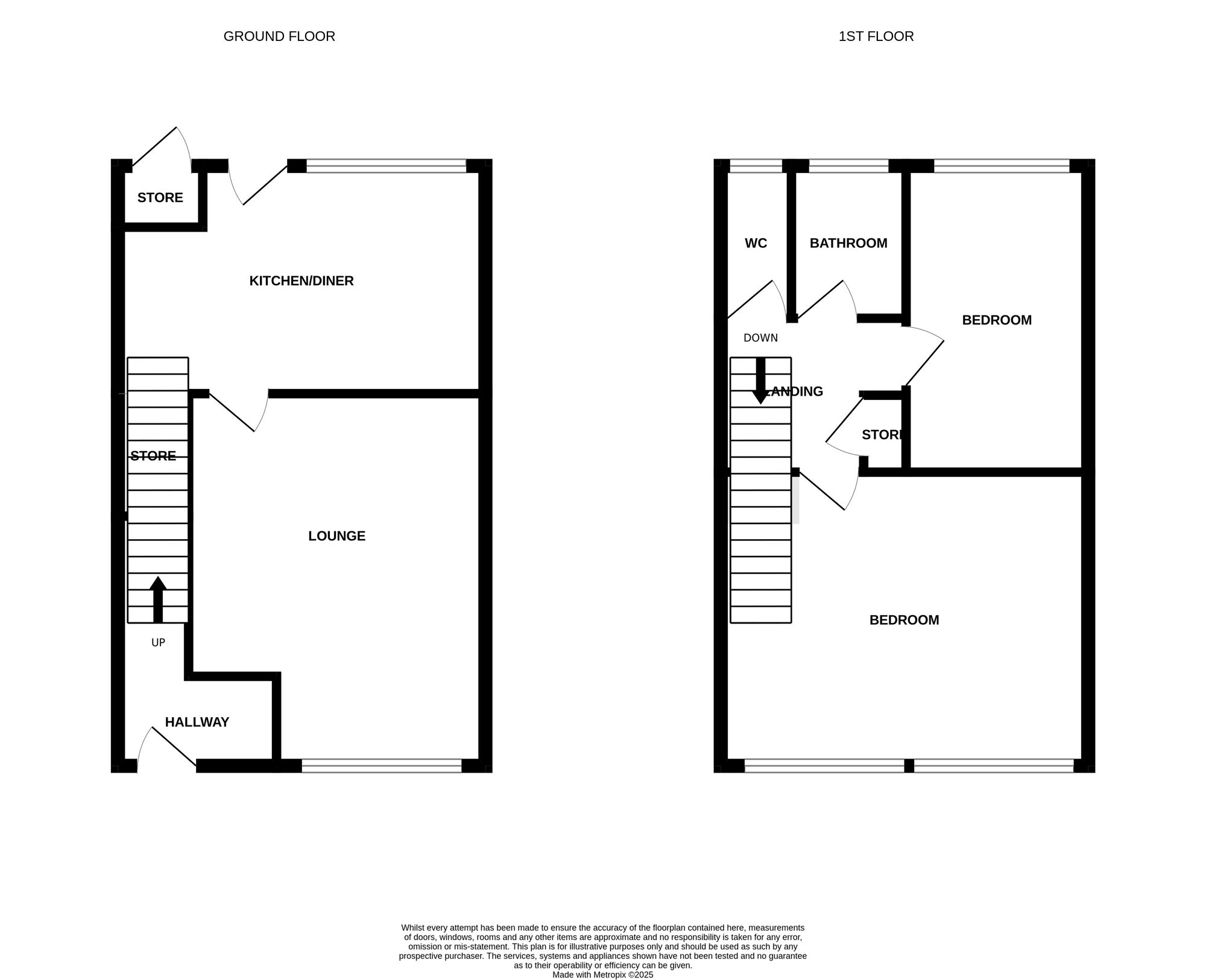
Lounge
12'4" x 14'12" (3.76m x 4.57m)
Kitchen Diner
15'7" x 9'4" (4.75m x 2.84m)
Bedroom 1
15, 8 x 3.12m
Bedroom 2
14'7" x 9'4" (4.45m x 2.84m)
Bathroom
4'12" x 5'5" (1.52m x 1.65m)
IMPORTANT NOTE TO POTENTIAL PURCHASERS:
We endeavour to make our particulars accurate and reliable, however, they do not constitute or form part of an offer or any contract and none is to be relied upon as statements of representation or fact. The services, systems and appliances listed in this specification have not been tested by us and no guarantee as to their operating ability or efficiency is given. All photographs and measurements have been taken as a guide only and are not precise. Floor plans where included are not to scale and accuracy is not guaranteed. If you require clarification or further information on any points, please contact us, especially if you are travelling some distance to view. Fixtures and fittings other than those mentioned are to be agreed with the seller.
Additional Information
-
Property refNLY250388
-
EPCD
-
TenureFreehold
-
Council TaxA
-
Local authorityStoke-On-Trent City Council
Similar properties for sale by Reeds Rains Newcastle-under-Lyme
The pin shows the exact address of the property
Energy Efficiency Rating
Very energy efficient - lower running costs
Not energy efficient - higher running costs
Current
57Potential
83CO2 Rating
Very energy efficient - lower running costs
Not energy efficient - higher running costs
