This calculator provides a guide to the amount of residential stamp duty you may pay and does not guarantee this will be the actual cost. This calculation is based on the Stamp Duty Land Tax Rates for residential properties purchased from 23rd September 2022 and second homes from 31st October 2024. For more information on Stamp Duty Land Tax, click here.
2 bedroom Mid Terrace House for sale, Fosseway, Clevedon, North Somerset, BS21
Features and Description
- Sold With No Onward Chain
- Two Bedroom House with Garage
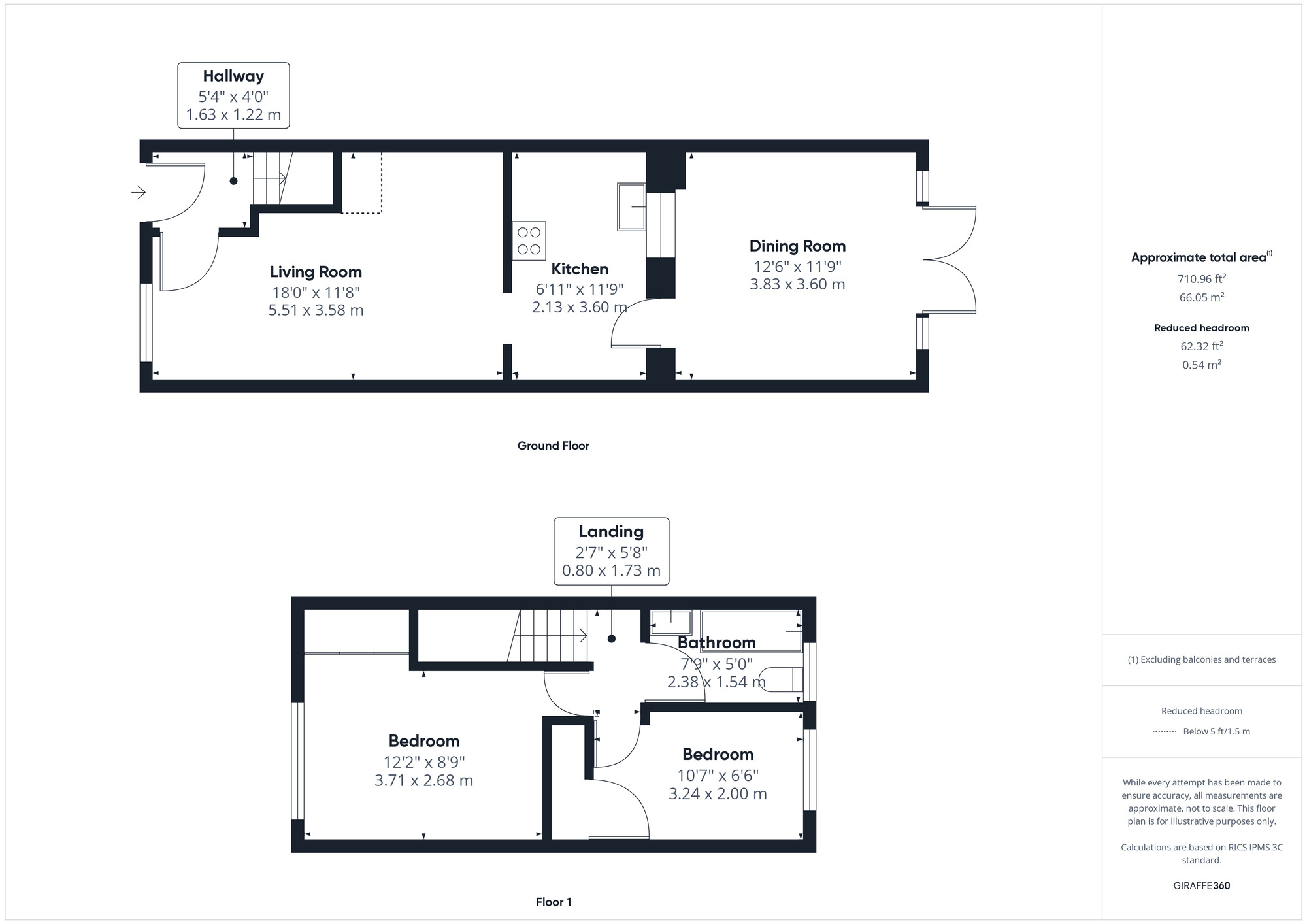
- Living Room and Separate Dining Room
- Modern Style Kitchen and Bathroom
- Double Glazed and Gas Centrally Heated
- EPC Rating C and Council Tax Band B
A well presented two bedroom terraced house ideally situated with easy access to local amenities, as well as scenic riverside and coastal walks. The property benefits from double glazing and gas central heating throughout.
The accommodation briefly comprises a welcoming living room, a fitted kitchen, and an extended layout providing a separate dining room—perfect for entertaining or family meals. To the first floor are two bedrooms and a white fitted suite.
Externally, the property boasts a fully enclosed rear garden, offering a private and secure outdoor space, along with a garage providing additional storage or parking.
An excellent opportunity for first-time buyers, downsizers, or investors alike.
Additional Information
Construction Taken From EPC: Wall, Cavity wall, as built, partial insulation (assumed). Roof, Pitched, 250 mm loft insulation.Mains Electricity/Mains Drainage/Mains Water/Mains GasBroadband - Fibre to Cabinet Broadband download speed 76 Mbps and upload speed 15 Mbps. This information is sourced via www.openreach.com/fibre-broadband, we advise you make your own enquires. Our client has advised they are connected to Virgin Media.Mobile Signal/CoverageThere is good coverage for mobile signal in this area, please check with your provider if this will be available to you. For an indication of coverage in the area, we recommend that you check the Ofcom checker. https://checker.ofcom.org.uk/en-gb/mobile-coverage
IMPORTANT NOTE TO POTENTIAL PURCHASERS:
We endeavour to make our particulars accurate and reliable, however, they do not constitute or form part of an offer or any contract and none is to be relied upon as statements of representation or fact. The services, systems and appliances listed in this specification have not been tested by us and no guarantee as to their operating ability or efficiency is given. All photographs and measurements have been taken as a guide only and are not precise. Floor plans where included are not to scale and accuracy is not guaranteed. If you require clarification or further information on any points, please contact us, especially if you are travelling some distance to view. Fixtures and fittings other than those mentioned are to be agreed with the seller.
Fosseway, Clevedon, North Somerset, BS21
Additional Information
-
Property refCLV260157
-
EPCC
-
TenureFreehold
-
Council TaxB
-
Local authorityNorth Somerset Council
Similar properties for sale by Reeds Rains Clevedon
The pin shows the exact address of the property
Energy Efficiency Rating
Very energy efficient - lower running costs
Not energy efficient - higher running costs
Current
70Potential
91CO2 Rating
Very energy efficient - lower running costs
Not energy efficient - higher running costs
